極簡感域
私人住宅 | 香港 | 西灣河
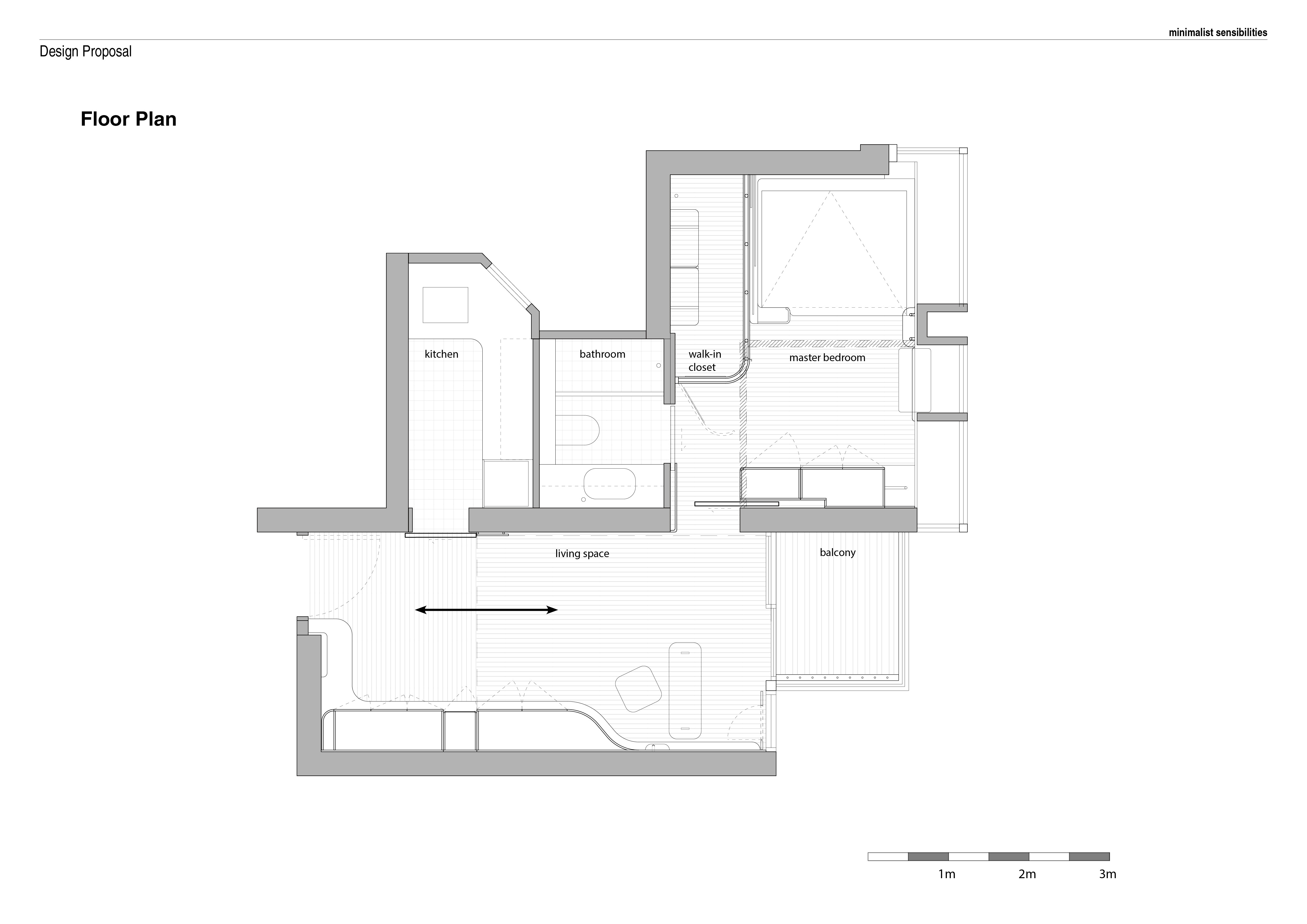
本住宅翻新工程滿足業主極簡主義偏好,展現材質紋理的和諧融合。單色調的克制色彩搭配,突顯多樣質感,為極簡設計增添層次與視覺趣味。整體空間營造出精緻且富有格調的居住環境,彰顯質感、通透性與極簡美學的精妙互動。此設計充分展現簡約之中蘊含的深度與細膩,提升生活質素與空間美感。
項目資料
單位面積
675平方尺
家庭成員
1
完成年份
2024
睡房
1
風格
當代, 現代, 工業, 簡約
物業類型
私人住宅
地區
香港
設計費用
50萬以下
項目工期
6 個月
服務提供
空間規劃
材質選擇
傢具、擺設及藝術品
施工文件
訂製窗簾及寢具用品
施工管理
傢具設計及訂造
購買、採購及安裝
相關項目
你可能也喜歡
































